Objektnummer
986

Zweitbezug - 3.5 Zimmer im DG mit Balkon - Seniorengerecht

Angaben zur Wohnung

Kaltmiete
1.375,00 EUR
Nebenkosten
250,00 EUR
Kaution
2.500,00 EUR
Wohnfläche
91 m²
Gesamtfläche
96,91 m²
Anzahl Zimmer
4
Einbauküche
Ja

Objektbeschreibung

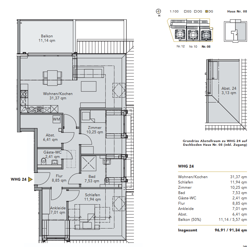
Diese neuwertige Wohnung befindet sich im Dachgeschoß in einer von drei Stadtvillen aus dem Baujahr 2023. Sie ist bequem über einen Aufzug erreichbar und vollständig ebenerdig und damit behinderten- und seniorengerecht gebaut worden. Der 31 m² große offene Wohn-/Kochbereich ist mit einer hochwertigen Einbauküche inkl. E-Geräten ausgestattet und bietet Zugang zum 11 m² großen Balkon. Das erste Schlafzimmer ist über ein separates Ankleidezimmer erreichbar. Daneben befindet sich das moderne Duschbad mit Fenster. Ein separates Gäste-WC erhöht den Wohnkomfort. Gegenüber vom praktischen Abstellraum befindet sich das zweite Zimmer, welches mit 10 m² als Büro-, Kinder- oder Schlafzimmer flexibel genutzt werden kann. Über das Treppenhaus geht es zum begehbaren Dachboden, auf dem jede Wohneinheit einen eigenen, abschließbaren Dachbodenraum besitzt. Zur Wohnung gehört ein Stellplatz und zusätzlich ein Carport. Auf dem Grundstück befindet sich des Weiteren ein gemeinschaftlicher Fahrradabstellraum, inkl. abschließbarer eigener Steckdose, sowie ein Müllhaus. Das Effizienzhaus wird über eine Luft/Wasser-Wärmepumpe versorgt, die mit neusten energetischen Standards die Heizkosten möglichst gering hält. Die Wohnung verfügt über eine Fußbodenheizung, die auf den Wärmebedarf der Räume ausgelegt ist. Zur raumweisen Steuerung ist jeder Wohnraum mit einer eigenen smarten Raumsteuerung ausgestattet. Diese ermöglich eine Steuerung via App oder Bedientableau. Im Badezimmer ist zusätzlich ein elektrischer Handtuchheizkörper installiert. Zusätzlich besitzt die Wohnung ein dezentrales Abluftsystem, dass die Lüftung automatisch und unkompliziert übernimmt. Alle elektrischen Einrichtungen lassen sich bequem über ein wohnungseigenes SmartHome-System steuern. Die Wohnung ist ab dem 01.07.2026 bezugsfrei.

Lage

Die Stadtvillen stehen auf dem Ex-Post-Gelände und damit zentral in Stuhr-Brinkum. Mit etwa 11.000 Einwohnern ist Brinkum der größte Ortsteil von Stuhr im Süden Bremens. Wenn man den Ort in westöstlicher Richtung verlässt gelangt man schnell durch Felder, Wiesen und Marschland. Aber auch im Norden, wo sich der Übergang ins bremische Stadtgebiet über die Autobahnauffahrt und ein Gewerbegebiet mit großem Möbelhaus fließend gestaltet, laden die Ochtumniederungen zu ausgedehnten Fahrradtouren mit ausgeprägtem Naturerlebnis ein. Die unmittelbare Autobahn- und Flughafennähe bietet verkehrstech- nisch geradezu ideale Voraussetzungen. Zusätzlich wird gerade eine Straßenbahnverbindung aufgebaut, die neben den bereits vorhandenen Busverbindungen auch schnelle Bahnverbindungen in die Bremer Innenstadt bieten soll. Ansonsten bietet Brinkum mit seinen vielfältigen Einkaufsmöglichkeiten, der gut ausgestatteten haus- und fachärztlichen Versorgung sowie der vorbildlichen Anbindung mit öffentlichen Verkehrsmitteln wesentliche Voraussetzungen für einen nachhaltig hohen Wohnwert.

Energieangaben

Energiebedarfskennwert: 14,40 kWh/(m²*a)
Energiepasstyp: BEDARF
Gebäudetyp: Wohngebäude
Wesentlicher Energieträger: Luft/Wasser-Wärmepumpe, Strom
Energieeffizienzklasse: A+
Baujahr lt. Energieausweis: 2023
Ausstelldatum: 2023-12-15
Gültig bis: 14.12.2033

Ansprechpartner

Herr
Axel, Brauner
Tel.: +49 421 2007700

Interesse? Kontaktieren Sie uns!

Telefon: 0421-200770-0